Balasto sistema SE1200 horizontaliam saulės modulių montavimui ant plokščio stogo - 16 vnt.
prekės nėra
pridėti į norų sąrašą
Aprašymas
Betoninis balastinis blokas horizontaliam FV montavimui ant plokščio stogo
Betoninis balastinis blokas – tai surenkamas montavimo sistemos elementas, skirtas horizontaliai fotovoltinių modulių instaliacijai ant plokščių stogų. Idealus sprendimas montuotojams, ieškantiems greito montavimo be įsikišimo į stogo dangą.

Kodėl verta? Balastinė sistema panaikina gręžimo į stogą būtinybę, išsaugant jo struktūrinį vientisumą ir sandarumą. Betono svoris užtikrina stabilų modulių tvirtinimą net esant stipriam vėjui – be stogo dangos pažeidimo rizikos.
Būdinga L raidės forma leidžia tiksliai nustatyti modulius optimaliame kampe, maksimaliai padidindama energijos išeigą su minimaliomis montavimo darbo sąnaudomis.
Matmenys ir techniniai parametrai

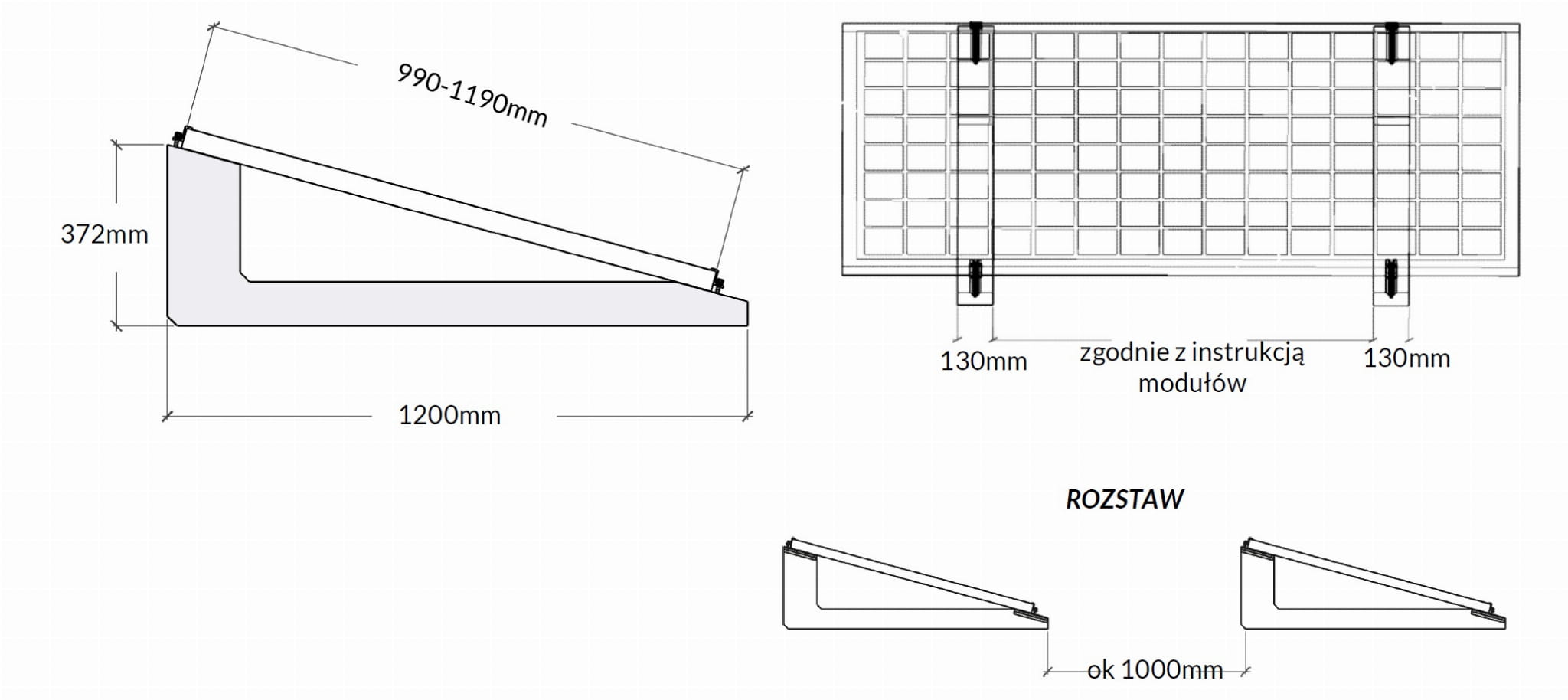
- Pagrindo ilgis: 1200 mm
- Atramos aukštis: 372 mm
- Modulio plotis: 990–1190 mm
- Blokų tarpas: apie 1000 mm
- Atstumas nuo modulio krašto: 130 mm (pagal modulių gamintojo instrukciją)
- Betono klasė: C40/50 – didelis ilgaamžiškumas ir atsparumas
Pagrindiniai privalumai
- Be gręžimo: montavimas nepažeidžiant stogo dangos
- Greita instaliacija: surenkamieji elementai paruošti klojimui
- Universalumas: suderinamumas su 990–1190 mm pločio moduliais
- Ilgaamžiškumas: C40/50 klasės betonas garantuoja daugiametę eksploataciją
- Stabilumas: savasis svoris apsaugo nuo slydimo ir pakėlimo vėjo
Taikymas: Balastinė sistema puikiai tinka visur, kur gręžimas yra nepageidautinas arba neįmanomas – ant stogų su membrana, bituminiu ritiniu, skarda ar kitomis dangomis, reikalaujančiomis sandarumo išsaugojimo. Idealus sprendimas pramoniniams pastatams, sandėliams ir komerciniams pastatams su plokščiais stogais.
Ładowanie tabeli porównawczej...
Ładowanie galerii...
Visi atsiliepimai (teigiami ir neigiami) rodomi atsižvelgiant į platformos skaičiaus apribojimą. Patikriname, ar jie gauti iš klientų, kurie įsigijo produktą. Daugiau informacijos rasite mūsų komentavimo politikos puslapyje.